
VERO BEACH – In a letter to the City Council Vero Beach Art Club President Mary Ellen Kosner informed the city the club would like to build “a home of our own.”
The Art Club proposes to construct a new community art center in Riverside Park on approximately one acre of 7.1 acres it jointly leases with the Vero Beach Museum of Art. Together with the Museum, the Art Club has a co-lease on the land for a $1-a-year through 2050.
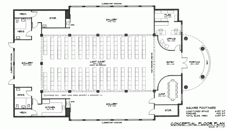
In her letter to the Council, Kosner indicated the 400-plus member club, which is now leasing space from the Museum, envisions constructing a 6000-plus-square-foot community art center capable of hosting regular local art shows, workshops, community outreach programs, an artist-in-residence program, art classes, and an art store. The new art center would feature local art in three galleries, and would include offices, a conference room and a kitchen.


The proposal by the Art Club would be a much-needed welcome addition for the art community in Indian River County. The art scene is what attracts many tourists as well as retirees wanting to relocate to Florida. It is one of the things that is the most unique in living in Central Florida.
The Art Club is composed of highly motivated individuals who will ensure that it is a first class operation.
This is a proposal that should get the full support of the community.